Kun kirjaudut 14.4. alkaen OmaVeroon, saat käyttöösi Suomi.fi-viestit. Veroposti tulee sen jälkeen vain sähköisesti OmaVeroon. Lue lisää muutoksesta.
Giddodatvearroalmmuhus (skovvi 3743s) – deavdinráva
Giddodatvearroalmmuhusain sáhtát dievasmahttit dahje divvut dieđuid mat leat giddodatvearuhusmearrádusa vuođuštussan.
Sáhtát addit dieđuid juogo OmaVero-bálvalusas dahje dáinna skoviin. Skovi ja lassedieđuid oaččut skovvesiiddus. Máhcahusčujuhus lea merkejuvvon skovi ovdasiidui.
Juos almmuhat eanet go ovtta giddodaga, eanavuođu dahje vistti dieđuid, deavdde dain juohkehaččas iežas skovi.
Fuomáš, ahte du deavdin dieđut lohkkojit optalaččat ja dušše teaksta, mii lea skovi deavdingittiin gieđahallo. Ale čale dieđuid ovdamearkka dihte skovi ravddaide danin, go dákkár diehtu ii oidno dárkistettiin.
Juos giddodagas lea máŋga oamasteaddji
Juos oamastat giddoddaga, eanavuođu dahje vistti ovttas du beallalaččain dahje guktuin lea hálddašanvuoigatvuohta, reahkká ahte deavdibeahtti dušše ovtta skovi joappágoappá beallalačča namain.
Fuomáš goit, ahte rabasguoibmi ii dábálaččat vearuhusas gehččo beallalažžan. Oktasaš almmuhus rabasguimmiin reahkká dušše dalle, juos doai leahppi leamašan náitosis dahje dudnos lea dahje lea leamašan oktasaš mánná.
Juos giddodagas, eanavuođus dahje visttis leat maiddái eará oamasteaddjit, sii galget almmuhit dieđuid iežaset skoviin.
Sisdoallu
1 Heaggadieđut ja vearrojahki
2 Giddodaga identifiserendieđut
3 Giddoadaga oamasteapmi ja hálddašeapmi ođđajagimánu 1. beaivve dán jagi
4 Eanavuođđu
4.1 Identifiseren- ja iešvuohtadieđut
4.2 Eanadoalloeatnama viidodatdieđuid almmuheapmi
5 Visti
5.1 Vistti identifiserendieđut
5.2 Vistti galgá sihkkut eret
5.3 Vistti oamasteapmi ja hálddašeapmi ođđajagimánu 1. beaivve dán jagi
5.4 Vistti gaskandagavuohta ja gárvvásmuvvan
5.5 Vistti viiddideapmi
5.6 Vistti geavahanulbmil
5.7 Vistetiipa ja vistti iešvuođat
5.8 Vuođđodivvumat ja eará mearkkašahtti divvundoaimmat
6 Lassedieđut
7 Giddodatvearu njulgengáibádus giddodatvearuhusa nohkama maŋŋá
1 Heaggadieđut ja vearrojahki
Deavdde dán oasi álo. Deavdde persovdnanummira dahje F-dovddaldaga ja vearrojagi maiddái skovi eará siidduide.
Namma ja persovdnanummir dahje F-dovddaldat
Giddodatvearroalmmuhusa addi namma ja persovdnanummir dahje F-dovddaldat.
Vearrojahki
Dat vearrojahki, man dieđuid almmuhat. Vearrojagi oainnát giddodatvearuhusmearrádusa ovdasiiddus.
Giddodatvearuhusas vearrojahki lea jahki, mas giddodatvearru mearriduvvo máksin láhkai. Giddodatvearru mearriduvvo dasa, guhte oamasta giddodaga dahje lea oamasteaddji veardásaš hálddašeaddji vearrojagi álggus dahjege ođđajagimánu 1. beaivve (geahča dárkilabbot deavdinráva oassi 3). Giddodatvearuhusas vearuhanárvu meroštallo ovddit kaleandarjagi maŋimuš beaivvi dili mielde. Dát vearuhanárvu rehkenasto jagi maŋimuš beaivvi (31.12.) dili vuođul.
Ovdamearka: Juos oamastat giddodaga 1.1.2020, oaččut giđđat 2020 vearrojagi 2020 giddodatvearuhusmearrádusa. Dat vuođđuduvvá giddodaga vearuhanárvui 31.12.2019.
2 Giddodaga identifiserendieđut
Deavdde dán oasi álo.
Giddodatdovddaldat
Dan giddodaga giddodatdovddaldat, man dieđuid almmuhat. Giddodatdovddaldat lea njealjeoasát nummirráidu, ovdamearkan 092-416-0011-0123. Giddodatdovddaldaga oainnát ovdamearkka dihte giddodatvearuhusmerrádusas, lágačuorvvaduođaštusas dahje gávpegirjjis.
Mearreviidodatdovddaldat
Juos almmuhat rievdadusaid earukeahtes mearreviidodaga dieđuide, almmut dás lassin mearreviidodaga dovddaldaga, mii oidno giddodatdovddaldaga loahpas. Dat lea hámis M0000. Earukeahtes mearreviidodaga giddodatdovddaldat lea viđaoasát nummirráidu, ovdamearkka dihte 092-416-0011-0123-M0601.
3 Giddodaga oamasteapmi ja hálddašeapmi ođđajagimánu 1. beaivve dán jagi
Dán oasis sáhtat divvut giddodaga oamasteami ja hálddašeami dieđuid. Almmut dás, juos giddodatvearuhusmearrádusas ii leat váldon vuhtii, ahte leat ovdal dán jagi ođđajagimánu 1. beaivve ovdamearkka dihte
- oastán giddodaga
- ožžon giddodaga árbin, skeaŋkan dahje eará vástideaddji vugiin
- luohpadan giddodaga.
Giddodatvearru mearriduvvo dasa, guhte lea giddodaga oamasteaddji dahje oamasteaddji veardásaš hálddašeaddji vearrojagi álggus (ođđajagimánu 1. beaivve). Oamasteaddji veardásaš hálddašeaddjiin oaivvilduvvo olmmoš, geas lea giddodahkii almmá buhtadusa hálddašanvuoigatvuohta. Dákkár hálddašanvuoigatvuohta šaddá ovdamearkka dihte dalle, go giddodat skeŋkejuvvo ja skeŋkejeaddji doalaha giddodaga hálddašanvuoigatvuođa alccesis. Loga lasi hálddašanvuoigatvuođas (suomagillii).
Juos giddodat lea vuvdon vearrojagi áigge, giddodatvearru mearriduvvo oppa jagis vuovdái. Muhtumin vuovdi ja oasti sáhttet gávpegirjjis soahpat giddodatvearu juohkimis, muhto dát ii váikkut giddodatvearu mearrideapmai. Vearrohálddahus ii nappo juoge giddodatvearu vuovdi ja oasti gaskan gávpegirjji vuođul.
Fuomáš, ahte vearrojagi áigge dáhpáhuvvan giddodatdieđuid rievdadusat eai váikkut velá seamma jagi giddodatverrui.
Ovdamearka: Máhtte oamasta giddodaga vearrojagi 2020 álggedettiin (1.1.2020). Máhtte vuovdá giddodaga guovvamánus 2020. Gávpi ii váikkut Máhte giddodatverrui jagis 2020. Son ii dárbbaš addit giddodatvearroalmmuhusa oamastusmolsuma geažil jagis 2020 danin, go rievdadus váikkuha easkka jagi 2021 giddodatverrui.
Makkár oamastan- dahje hálddašanvuoigatvuohta dus lea giddodahkii?
Merke dása, makkár oamastan- dahje hálddašanvuoigatvuohta dus lea giddodahkii. Almmut maiddái, juos oamastan-, hálddašan- dahje láigovuoigatvuohta lea nohkan. Deavdde dán čuoggá maiddái dalle, go du ossodat giddodagahkii lea rievdan.
- Oamastan- ja hálddašanvuoigatvuohta
- Dábálaččat giddodaga oamasteaddjis lea oamastan- ja hálddašanvuoigatvuohta giddodahkii. Vállje dán molssaeavttu, juos dus leat guktot vuoigatvuođat.
- Giddodatvearuhussii váikkuheaddji hálddašanvuoigatvuohta sáhttá leat earás go giddodaga oamasteaddjis dušše, juos hálddašanvuoigatvuođa birra lea mearriduvvon skeaŋkagirjjis dahje testamenttes. Dan lassin leaska sáhttá doalahit hálddašanvuoigatvuođa giddodahkii, mii leamašan beallalaččaid oktasaš ruoktu.
- Juos giddodahkii lea doalahuvvon hálddašanvuoigatvuohta gávppi oktavuođas, das ii leat váikkuhus giddodatvearuhussii, muhto oasti lea giddodatvearrogeatnegas.
- Dušše oamastanvuoigatvuohta (hálddašanvuoigatvuohta lea doalahuvvon nubbái)
- Vállje dán molssaeavttu, juos dus lea giddodahkii duššefal oamastanvuoigatvuohta muhto ii hálddašanvuoigatvuohta. Ná lea ovdamearkka dihte dalle, go leat ožžon giddodaga skeaŋkan dahje testamenten, muhto giddodaga hálddašanvuoigatvuohta lea skeaŋkagirjjis dahje testamenttes doalahuvvon skeŋkejeaddjái dahje geasa nu nubbái. Maiddái leaska lea sáhttán doalahit hálddašanvuoigatvuođa giddodahkii, mii lea leamašan beallalaččaid oktasaš ruoktu.
Ovdamearka 1: Anja skeŋke giddodaga Villei 15.2.2019, muhto skeaŋkka oktavuođaš Anja doalaha alccesis eallenagi hálddašanvuoigatvuođa giddodahkii. Anjas lea giddodaga hálddašanvuoigatvuohta ja Villes oamastanvuoigatvuoigatvuohta. Anja lea ain giddodatvearrogeatnegas dán giddodagas.
Ovdamearka 2: Anja skeŋke giddodaga Villei 15.2.2019, muhto seammás son skeŋke giddodaga eallenagi hálddašanvuoigatvuođa Veerai. Dalle Villes lea giddodaga oamastanvuoigatvuohta ja Veeras hálddašanvuoigatvuohta. Juos Ville oažžu giđđat 2020 giddodatvearuhusmearrádusa, man dieđuid mielde sus lea oamastan- ja hálddašanvuoigatvuohta, Ville galgá ieš deavdit giddodatvearroalmmuhusa ja almmuhit dán čuoggás, ahte sus lea dušše oamastanvuoigatvuohta. Maiddái Veera galgá deavdit giddodatvearroalmmuhusa, geahča ovdamearkka 4.
Ovdamearka 3: Pirkko ja Pertti leigga náittosbárra ja oamasteigga beallái smávvabearašdállogiddodaga. Giddodat lei sudno oktasaš ruoktu. Go Pertti jámii, Pirkko doalahii alccesis hálddašanvuoigatvuođa giddodahkii. Giddodaga oamastanvuoigatvuohta juohkášuvvá Pirkkoi (1/2) ja Pertti jápminbeassái (1/2). Giddodaga hálddašanvuoigatvuođa lea oppalohkái Pirkkos (1/1). Pirkko lea nappo okto giddodatvearrogeatnegas oppa giddodagas.
- Dušše hálddašanvuoigatvuohta
- Vállje dán molssaeavttu, juos dus lea hálddašanvuoigatvuohta muhto ii oamastanvuoigatvuohta. Ná lea ovdamearkka dihte dalle, go giddodaga hálddašanvuoigatvuohta lea doalahuvvon skeaŋkagirjjiin dahje testamenttiin dahje go leaska geavaha hálddašanvuoigatvuođa giddodahkii, mii leamašan beallalaččaid oktasaš ruoktu.
Ovdamearka 4: Anja lea skeŋken giddodaga Villei 15.4.2019 ja doalahan eallenahkásaš hálddašanvuoigatvuođa Veerai. Villes lea nappo giddodaga oamastanvuoigatvuohta ja Veeras hálddašanvuoigatvuohta. Juos Veera ii giđđat 2020 oaččo giddodatvearuhusmearrádusa dahje su giddodatvearuhusmearrádusas váilu dát giddodat, Veera galgá deavdit giddodatvearroalmmuhusa ja almmuhit dán čuoggás, ahte sus lea hálddašanvuoigatvuohta giddodahkii. Maiddái Ville galgá deavdit giddodatvearroalmmuhusa, geahča ovdamearkka 3.
- Láigovuoigatvuohta (ii oamastanvuoigatvuohta eanavuđđui)
- Vállje dán molssaeavttu, juos leat oastán dahje muđui ožžon oamastussii dahje háldui vistti, mii lea nuppi oamastan eanavuođu alde (omd. láigoeanasajis), iige giddodat oidno giddodatvearuhusmearrádusastat. Almmut vistti dieđuid oasis 5 (Visti). Juos giddodagas leat máŋga vistti, deavdde juohkehaččas iežas skovi dahje daga almmuhusa OmaVero -bálvalusas. Oasi 4 (Eanavuođđu) ii dárbbaš deavdit danin, go eanavuođu oamasteaddji lea eanavuođus vearrogeatnegas.
- Ii šat oamastan- dahje hálddašanvuoigatvuohta giddodahkii
- Vállje dán molssaeavttu, juos giddodat oidno ain vearuhusmearrádusastat, vaikke leat ovdamarkka dihte vuovdán ovdal vearrojagi ođđajagimánu 1. beaivve. Vállje molssaeavttu maiddái dalle, juos dus eará sivas ii šat leamaš oamastan- iige hálddašanvuoigatvuohta giddodahkii vearrojagi álggus.
- Ii šat láigovuoigatvuohta (láigovuoigatvuohta oktan visttiiguin luohpaduvvon)
- Vállje dán molssaeavttu, juos leat luohpadan vearuhusmearrádusain ain visttiid, mat oidnojit ja mat leat láigoeanasajis dahje muđui nuppi oamastan eanavuođu alde. Juos leat luohpadan láigovuoigatvuođa oktan visttiiguin, don it dárbbaš almmuhit sierra visttiid luohpadeami skovi oasis 5 (Visti).
Du ossodat giddodagas ođđajagimánu 1. beaivve (omd. ½)
Almmut dás oamastanossodagat giddodagas, juos du ossodat lea rievdan. Almmut dan lassin du beallalačča oamastan ossodaga sihke giddodaga eará oamasteaddjiid čuoggás 6 (Lassedieđut).
Juos it šat oamas giddodagas maŋge ossodaga, almmut ossodahkan 0/0. Juos dus lea sihke oamastan- ja hálddašanvuoigatvuohta giddodahkii, muhto dat leat eará sturrosaččat, almmut dás hálddašanvuoigatvuođa ossodaga. Almmut dan lassin oamastanvuoigatvuođa ossodaga skovi oasis 6 (Lassedieđut).
Beaivi, goas oamastan- dahje hálddašanvuoigatvuohta rievddai
Almmut dás, man beaivve oamasteapmi dahje hálddašeapmi lea rievdan.
Mo rievdadus lea dáhpáhuvvan?
Merke dán čuoggái, mo leat ožžon dahje luohpadan giddodaga. Juos merket molssaeaktun Eará vuohki, almmut rievdadusa birra dárkilabbot oasis 6 (Lassedieđut).
4 Eanavuođđu
- Juos almmuhat eanet go ovtta eanavuođu dieđuid, deavdde juohke eanavuođus iežas skovi.
- Juos divut eanavuođu dieđuid, mii lea giddodatvearuhusmearrádusas, deavdde álo oasi 2 (Giddodaga identifiserendieđut) sihke lassin čuovvovaš čuoggáin dušše daid dieđuid, maid divut:
- 4.1 Identifiseren- ja iešvuohtadieđut
- 4.2 Eanadoalloeatnama viidodatdieđuid almmuheapmi.
- Juos eanavuođđu dahje giddodat váilu oppalohkái giddodatvearuhusmearrádusas, deavdde unnimustá čuovvovaš čuoggáid:
- 2 Giddodaga identifiserendieđut
- 4.1 Identifiseren- ja iešvuohtadieđut
- Viidodat
- Eanavuođu gáddái rádjašuvvan dahje gáddevuoigatvuohta
- Lávva.
4.1 Identifiseren- ja iešvuohtadieđut
Deavdde dán oasi álo, go almmuhat rievdadusaid eanavuođu dieđuide – juogo divut eanavuođu dieđuid dahje almmuhat dakkár eanavuođu, mii váilu giddodatvearuhusmearrádusas. Váilu eanavuođđu sáhttá leat ovdamearkka dihte eanadálu ássanvistti, eanadoalu buvttadanvistti dahje astoáigge vistti huksensadji.
Vállje vuos, divutgo giddodatvearuhusmearrádusa eanavuođu dieđuid vai almmuhatgo eanavuođu dahje giddodaga mii váilu das. Juos divut eanavuođu dieđuid, almmut eanavuođu nummira. Oainnát dan giddodatvearuhusmearrádusas.
Viidodat
Almmut viidodaga njealjehasmehterin.
Huksenvuoigatvuohta
Almmut huksenvuoigatvuođa meari geardenjealjehasmehterin. Juos almmuhat eanavuođu, mii váilu iige huksenvuoigatvuohta leat du dieđus, sáhtát guođđit dán čuoggá guorusin.
Eanavuođu gáddái rádjašuvvan dahje gáddevuoigatvuohta
Vállje heivvolaš molssaeavttu:
- Rádjašuvvá gáddái dahje gáddebáhcagii
Eanavuođđu rádjašuvvá gáddái dahje gáddebáhcagii badjel 10 mehtera mátkkis. Das ii leat mearkkašupmi, gii gáddebáhcaga oamasta. - Ii rádjašuva gáddái dahje gáddebáhcagii
Eanavuođđu ii rádjašuva gáddái dahje gáddebáhcagii dahje rádjašuvvá dakkárii eanemustá 10 mehtera mátkkis. - Gáddevuoigatvuohta
Giddodaga eanavuođđu ii rádjašuva iežas gáddái dahje gáddebáhcagii, muhto giddodagas lea gáddevuoigatvuohta.
Lávva
Vállje heivvolaš molssaeavttu:
- Sajádatlávva
Eanavuođđu lea sajádatláva guovllus. - Gáddesajádatlávva
Eanavuođđu lea gáddesajádatláva guovllus. - Ii sajádatlávva
Eanavuođđu ii leat sajádatláva iige gáddesajádatláva guovllus.
Giddodagas lea eatnama váldinsadji
Vállje dán molssaeavttu go almmuhat eatnama váldinsaji guoskevaš dieđuid. Eatnama váldisajiin dárkkuhuvvo geađggi-, čievrra-, láirrá- ja lavnnjiváldinsadji, mii atnojuvvo eará go eana- dahje meahccedoalu iežas dárbbuide.
Juos eatnama váldinsajis leat juo dieđut giddodatvearuhusmearrádusas, vállje "Divun giddodatvearuhusmearrádussii merkejuvvon eanavuođu dieđuid" ja deavdde čuoggá "Eanavuodu nummir giddodatvearuhusmearrádusas". Juos eatnama váldinsadji váilu oalát giddodatvearuhusmearrádusas, vállje "Almmuhan eanavuođu, mii váilu". Merke goappáge dáhpáhusas ruossa čuoggái "Giddodagas lea eatnama váldinsadji". Almmut divoduvvon dieđuid dahje váilu eanavuođu dieđuid (ee. eatnama váldinsaji árvvu) Lassedieđut-čuoggás skovi loahpas. Juos eatnama váldin lea nohkan, almmut dán dieđu lassedieđuin ja maiddái lobi nohkanbeaivvi.
4.2 Eanadoalloeatnama viidodatdieđuid almmuheapmi
Deavdde dán oasi, juos divut eanadoalloeatnama viidodatdieđuid dahje almmuhat váilu giddodaga, gos lea eanadoalloeana. Eanadoalloeatnama, meahcceeatnama ja eará eanadoalu eatnama (joavdelas eatnama) viidodatdieđut eai leat giddodatvearuhusmearrádusas. Dat leat ovdadevdojuvvon vearroalmmuhusa Várit -čuoggás.
- Almmut eanadoalloeatnama, meahcceeatnama ja eará eanadoalu eatnama (joavdelas eatnama) viidodaga hektáran. Sáhtát almmuhit dieđu eanemustá njealji desimála (dahjege ovtta njealjehasmehtera) dárkilvuođain, ovdamearkka dihte 1,5000 há.
- Rehkenastte fárrui eanadoalloeatnama viidodahkii dan eanadoalloeatnama viidodaga, masa leat ádjagat goivojuvvon, muhto almmut dán eanadoalloeatnama ossodaga masa leat ádjagat goivojuvvon maiddái iežas čuoggás.
- Almmut eana- dahje meahccedoalu buvttadanvisttiid huksensaji viidodaga njealjehasmehterin (m²).
- Eanageavaheapmi sáhttá rievdat ovdamearkka dihte bealddu meahcceeanan nuppástuhttima, lávvema, luonddugáhttenguovllu vuođđudeami dahje meahccedoalu birasdoarjjasoahpamuša geažil. Atte dárbbu mielde čilgehusa rievdadusain čuoggás 6 (Lassedieđut).
Dárkilut dieđut giddodagaid eanavuođuid vearuvulošvuođas (rávvagis Ollásit giddodatvearuhussii gullevaš giddodaga ja eanadállui gullevaš giddodaga rájágeassin, suomagillii).
Juos almmuhat rievdadusaid dušše eanadoalloeatnama, meahcceeatnama ja eará eanadoalu eatnama (joavdelas eatnama) dieđuide, it oaččo ođđa giddodatvearuhusmearrádusa. Oainnát rievdadusaid ovdadevdojuvvon vearroalmmuhusas čuovvovaš jagi. Eana- ja meahccedoalu buvttadanvisttiid huksensajiid rievdadusaid oainnát giddodatvearuhusmearrádusas.
5 Visti
Juos almmuhat eanet go ovtta vistti dieđuid, deavdde juohkehaš visttis iežas skovi.
Go divut giddodatvearuhusmearrádusas vistti dieđuid, deavdde oasi 5.1 (Vistti identifiserendieđut) ja dan lassin dušše daid čuoggáid, maid dieđuid divut.
Go almmuhat giddodatvearuhanmearrádusas vistti, mii váilu, deavdde aŋkke čuovvovaš čuoggáid:
- 5.1 Vistti identifiserendieđut
- Bissovaš vistedovddaldat, juos dat lea du dieđus
- 5.3 Vistti oamasteapmi ja hálddašeapmi ođđajagimánu 1. beaivve dán jagi
- Du ossodat visttis ođđajagimánu 1. beaivve
- 5.4 Vistti gaskandagavuohta ja gárvvásmuvvan
- Huksema álggahanbeaivi
- Vistti gárvvásmuvvanbeaivi
- Gaskadaga vistti gárvánandássi juovlamánu 31. beaivve ovddit jagi
- 5.6 Vistti geavahanulbmil
- Vistetiippa mieldásaš dárkilut dieđut čuoggás 5.7 (Vistetiipa ja vistti iešvuođat)
- Olles viidodat olgguldasmihtuid mielde.
Go almmuhat gárvánandási vistái dahje vistti oassái, mii lea mielde giddodatvearuhusmearrádusas, deavdde dušše čuoggáid 5.1 ja 5.4.
5.1 Vistti identifiserendieđut
Deavdde dán oasi álo, go almmuhat rievdadusaid vistti dieđuide dahje almmuhat vistti, mii váilu giddodatvearuhusmearrádusas.
Vállje vuos, divutgo giddodatvearuhusmearrádusas dakkár vistti dieđuid, mii lea juo doppe vai almmuhatgo vistti, mii váilu. Juos divut vistti dieđuid, almmut, mii lea giddodatvearuhusmearrádusas dan vistti nummir, mii divvojuvvo. Juos visti čohkiida máŋgga oasis ja divut dušše dihto oassái gullevaš dieđuid (ovdamearkan vistti viiddidanoasi viidodaga), almmut maiddái vistti oasi nummira. Dange oainnát giddodatvearuhusmearrádusas.
Bissovaš vistedovddaldat
Juos almmuhat giddodatvearuhusmearrádusas vistti, mii váilu, deavdde dása dan bissovaš vistedovddaldaga. Almmut bissovaš huksendovddaldaga maiddái, juos visti lea mielde giddodatvearuhusmearrádusas muhto dovddaldat váilu dahje dat lea boastut. Juos it dieđe bissovaš huksendovddaldaga, sáhtát guođđit čuoggá guorusin.
Bissovaš huksendovddaldat (VTJ-PRT) lea dovddaldat, man Álbmotregisttarguovddáš addá juohke vistái ja ođđa huksenprošeavtta várás. Bissovaš huksendovddaldat atno ávkin ovddemuš identifiserendiehtun iešguđege eiseválderegisttariid gaskkas. Bissovaš vistedovddaldat lea hámis 100012345A.
5.2 Vistti galgá sihkkut eret
Deavdde dán oasi, juos giddodatvearuhusmearrádusas lea visti, mii ii duođalašvuođas gula giddodahkii dahje mii lea ovdamearkka dihte burgojuvvon. Muitte deavdit maiddái oasi 5.1 čuoggá Vistti nummir.
Visti lea burgojuvvon dahje duššaduvvon
Vállje dán molssaeavttu, juos visti lea burgojuvvon dahje muđui oalát duššaduvvon ovdal vearrojagi ođđajagimánu 1. beaivve. Merke maiddái burgin- dahje duššadanbeaivvi. Almmut maiddái sierra gieldda huksenbearráigehččui, ahte visti lea burgojuvvon dahje duššaduvvon.
Vistti dieđuid galgá sihkkut eret eará siva geažil
Vállje dán molssaeavttu, juos vistti ferte sihkkut eret giddodatvearuhusa dieđuin eará siva geažil. Čale dán lassin siva ja ákkastallama oassái 6 (Lassedieđut).
5.3 Vistti oamasteapmi ja hálddašeapmi ođđajagimánu 1. beaivve dán jagi
Deavdde oppa dán oasi, juos divut man nu giddodatvearuhusmearrádusa vistti dieđuid. Juos almmuhat vistti, mii váilu, deavdde goit čuoggá "Du ossodat visttis ođđajagimánu 1. beaivve".
Juos divut oppa giddodaga (ii nappo dušše ovtta ovttaskas vistti) oamasteapmai dahje hálddašeapmai laktáseaddji dieđu, dán oasi ii dárbbaš deavdit. Almmut dárbbašlaš dieđuid dalle skovi oasis 3 (Giddodaga oamasteapmi ja hálddašeapmi ođđajagimánu 1. beaivve dán jagi).
Dárbbu mielde sáhtát čállit lassedieđuid oassái 6 (Lassedieđut).
Makkár oamastan- dahje hálddašanvuoigatvuohta dus lea vistái?
Vállje dán čuoggás, makkár oamastan- dahje hálddašanvuoigatvuohta dus lea vistái. Almmut maiddái, juos oamastan- dahje hálddašanvuoigatvuohta lea nohkan. Deavdde dán čuoggá maiddái dalle, go du ossodat visttis lea rievdan.
Oamastan- ja hálddašanvuoigatvuohta
- Dávjá vistti oamasteaddjis lea oamastan- ja hálddašanvuoigatvuohta vistái. Vállje dán čuoggá, juos dus leat guktot vuoigatvuođat.
- Giddodatvearuhussii váikkuheaddji hálddašanvuoigatvuohta sáhttá leat earás go vistti oamasteaddjis dušše, juos hálddašanvuoigatvuođas lea mearriduvvon skeaŋkagirjjis dahje testamenttas. Dan lassin leaska sáhttá doalahit hálddašanvuoigavuođa giddodahkii, mii leamašan beallalaččaid oktasaš ruoktu.
- Juos vistái lea doalahuvvon hálddašanvuoigatvuohta gávppi oktavuođas, das ii leat váikkuhus giddodatvearuhussii.
Dušše oamastanvuoigatvuohta (hálddašanvuoigatvuohta lea doalahuvvon nubbái)
- Vállje dán molssaeavttu, juos dus lea dušše oamastanvuoigatvuohta muhto ii hálddašanvuoigatvuohta. Ná lea ovdamearkka dihte dalle, go leat ožžon vistti skeaŋkan dahje testamentan, muhto vistti hálddašanvuoigatvuohta lea skeaŋkagirjjis dahje testamenttas doalahuvvon skeŋkejeaddjái dahje geasa nu nubbái. Maiddái leaska lea sáhttán doalahit hálddašanvuoigavuođa giddodahkii, mii leamašan beallalaččaid oktasaš ruoktu.
- Geahča ovdamearkkaid deavdinrávvaga oasis 3 – seamma ovdamearkkat heivejit maiddái beare vistti oamasteapmai ja hálddašeapmai.
Dušše hálddašanvuoigatvuohta
- Vállje dán molssaeavttu, juos dus lea hálddašanvuoigatvuohta, muhto ii oamastanvuoigatvuohta. Ná lea ovdamearkka dihte dalle, go vistti hálddašanvuoigatvuohta lea doalahuvvon skeaŋkagirjjiin dahje testamenttain dahje go leaska lea doalahan hálddašanvuoigatvuođa giddodahkii, mii leamašan beallalaččaid oktasaš ruoktu.
- Geahča ovdamearkka deavdinrávvaga oasis 3. Ovdamearka heive maiddái beare vistti oamasteapmai ja hálddašeapmai.
Ii šat oamastan- dahje hálddašanvuoigatvuohta vistái
Vállje dán čuoggá, juos leat luohpadan iežat ovdalis oamastan dahje hálddašan vistti, iige dus leamašan oamastan- dahje hálddašanvuoigavuohta vistái ođđajagimánu 1. beaivve.
Du ossodat visttis ođđajagimánu 1. beaivve (omd. ½)
Almmut dás iežat oamastanossodaga giddodahkii, juos du ossodat lea rievdan dahje du ossodat visttis ii leat seamma, go du ossodat giddodaga eanavuođus. Almmut ossodaga cuovkalohkun. Almmut dan lassin du beallalačča oamastan ossodaga ja vistti eará oamasteaddjiid čuoggás 6 (Lassedieđut).
Beaivi, goas oamasteapmi dahje hálddašeapmi rievddai
Almmut dás, man beaivve oamasteapmi dahje hálddašeapmi rievddai.
Mo rievdadus lea dáhpáhuvvan?
Almmut dán čuoggás, man láhkai leat luohpadan dahje ožžon vistti. Dárbbu mielde sáhtát muitalit áššis dárkilabbot čuoggás 6 (Lassedieđut).
5.4 Vistti gaskandagavuohta ja gárvvásmuvvan
Deavdde dán oasi, juos almmuhat giddodatvearuhusmearrádusas vistti, mii váilu dahje divut vistti dieđuid. Juos almmuhat dan vistti dieđuid, mii váilu, almmut gárvvásmuvvanbeaivvi. Juos visti leamašan gaskandaga, almmut álggahanbeaivvi ja vistti gárvánandási ovddit jagi loahpa (31.12.) dili mielde.
Ovdamearka: Vistti huksen lea álggahuvvon 15.5.2018 ja visti lea gárvvásmuvvan 1.2.2020. Visti nappo leamašan gaskandaga 31.12.2019. Juos visti váilu jagi 2020 giddodatvearuhusmearrádusas, almmut huksema álggahanbeaivvi ja vistti gárvánandási 31.12.2019.
- Visti lea giddodatvearuhusa dáfus gárvvásmuvvan dalle, go vistái lea mieđihuvvon atnuiváldinlohpi.
- Juos ássanvistti geallirgeardi, 2. geardi dahje lokta lea spárvemeahttun muhto vistái lea mieđihuvvon atnuiváldinlohpi, visti ii dollojuvvo giddodatvearuhusas gaskandaga. Visti lea nappo giddodatvearuhusa dáfus ollásit gárvvis fuolakeahttá spárvema váilivuođain.
Huksema álggahanbeaivi
Almmut dás huksema álggahanbeaivvi, juos visti leamašan gaskandaga 31.12. vearrojagi ovddit jagi. Juos visti leamašan gárvvis, álggahanbeaivvi ii dárbbaš almmuhit.
Vistti gárvánanbeaivi
Almmut dás ođđa vistti gárvvásmuvvanbeaivvi. Juos divut boares vistti gárvvásmuvvanjagi, sáhtat almmuhit dan maiddái dán čuoggás. Juos it dieđe boares vistti dárkkes gárvvásmuvvanbeaivvi, almmut gárvvásmuvvanjagi maŋimuš beaivvi.
Gaskandaga vistti gárvánandássi juovlamánu 31. beaivve ovddit jagi
Almmut dás vistti gárvánandási proseantan. Juos it almmut gárvánandási, Vearrohálddahus meroštallá dan huksema álggahanbeaivvi ja vistti gárvvásmuvvanbeaivvi vuođul.
Lassedieđut vistti gárvánandási meroštallamis (suomagillii)
5.5 Vistti viiddideapmi
Viiddideami álggahanbeaivi
Almmut dás huksema álggahanbeaivvi, juos viiddideapmi leamašan gaskandaga 31.12. vearrojagi ovddit jagi.
Viiddideami gárvvásmuvvanbeaivi
Almmut dás viiddideami gárvvásmuvvanbeaivvi.
Gaskandaga viiddideami gárvánandássi juovlamánu 31. beaivve ovddit jagi
Almmut dás viiddideami gárvánandási proseantan. Juos it almmut gárvánandási, Vearrohálddahus meroštallá dan viiddideami huksema álggahanbeaivvi ja viiddideami gárvvásmuvvanbeaivvi vuođul.
Viiddideami olles viidodat
Almmut dás viiddideami olles viidodaga njealjehasmehterin. Loga rávvagiid olles viidodaga rehkenastima várás deavdinrávvaga oasis 5 (Visti) čuoggás 5.7 (Huksentiipa ja vistti iešvuođat).
Viiddideami sadjáivuohta
Almmut dás vistti viiddideami sadjáivuođa guđahasmehterin. Viiddideami sadjáivuođa galgá almmuhit, juos viiddidanvuloš vistti huksentiipa lea industriija- dahje rádjovisti, gávpevisti, doaimmahatvisti, hotealla dahje eará visti dahje huksehus.
Loga rávvagiid sadjáivuođa rehkenastima várás deavdinravvaga oasis 5 (Visti) čuoggás 5.7 (Huksentiipa ja vistti iešvuođat).
Vistti olles viidodat viiddideami maŋŋá
Almmut dás oppa vistti rehkenaston olles viidodaga olgguldasmihtuid mielde. Almmut olles viidodaga njealjehasmehterin.
Vistti sadjáivuohta viiddideami maŋŋá
Almmut dás oppa vistti sadjáivuođa guđahasmehterin.
5.6 Vistti geavahanulbmil
Deavdde dán oasi, juos almmuhat ođđa vistti dahje divut vistti dieđuid.
Fásta ássanatnu dahje laktása dasa
Vállje dán molssaeavttu, juos unnimustá bealli vistti lanjadagaid viidodagas lea fásta ássananus. Vállje dán molssaeavttu maiddái dalle, go gažaldagas lea gaskandaga visti, man leat huksegoahtán váldoáššis fásta ássanatnui.
Maiddái sierra dállodoallo-, sávdne- dahje biilastállevisti gullá dán jovkui, juos dasa laktáseaddji váldovisti lea váldoáššis fásta ássananus.
Eará ássanatnu go fásta, dahje láktása dasa
Vállje dán molssaeavttu, juos badjel bealli vistti lanjadagain geavahuvvo váldoáššis eará ássamii go fásta ássamii. Eará ássan lea ovdamearkka dihte asttuáigge ássan. Vállje dán molssaeavttu maiddái dalle, go gažaldagas lea gaskandaga visti, man leat huksegoahtán váldoáššis eará ássamii go fásta ássamii.
Maiddái sierra dállodoallo-, sávdne- dahje biilastállevisti gullá dán jovkui, juos dasa laktáseaddji váldovisti atnojuvvo váldoáššis eará ássamii go fásta ássamii.
Eará go ássanatnu
Váljje dán molssaeavttu, juos badjel bealli vistti lanjadagaid viidodagas lea eará go ássananus. Vállje dán molssaeavttu maiddái dalle, go badjel bealli vistti lanjadagaid viidodagas atnojuvvo ealáhusdoaibman ollašuhtton orrundoaimma várás dahje dušše eanadoalu oktavuođas ollašuhtton orrundoaimmá várás.
5.7 Vistetiipa ja vistti iešvuođat
Dán oasis leat 8 molssaevttolaš ollisvuođa:
- Smávvadállu
- Asttuáigge visti
- Dállodoallovisti, biilastálle dahje sávdni
- Industriija- ja rádjovisti
- Ássangeardedállu
- Gávpevisti
- Doaimmahatvisti dahje hotealla
- Eará visti dahje huksehus.
Deavdde dan ollisvuođa, mii vástida vistti tiippa. Juos it dieđe vistetiippa sihkkarit, deavdde dieđuid dan vistetiippa buohta, mii govvida vistti buoremusat. Čale dárbbu mielde iežat govvádusa visttis čuoggái 6 (Lassedieđut).
Dát čuokkis lea seamma buot molssaeavttuin:
Olles viidodat olgguldasmihtuid mielde
Vistti dahje dan oasi olles viidodat njealjehasmehterin. Almmut olles viidodaga njealjehasmehtera dárkilvuođain.
Vistti olles viidodat lea vistti viidodat rehkenaston olgguldasmihtuid mielde. Dasa rehkenastojit buot gerddiid, gealláriid ja lieggaskoađastuvvon loktalanjaid viidodagat. Olles viidodahkii eai goittotge rehkenasto bálgoŋŋat, goavddit eaige dakkár sajit, maid friija allodat lea vuollái 160 cm. Lokta ja olgofeaskkir rehkenasto fárrui olles viidodahkii dušše, juos dat leat lieggaskoađastuvvon. Ráidodálu ja bárradálu viidodagain oaivvilduvvo oppa vistti viidodat.
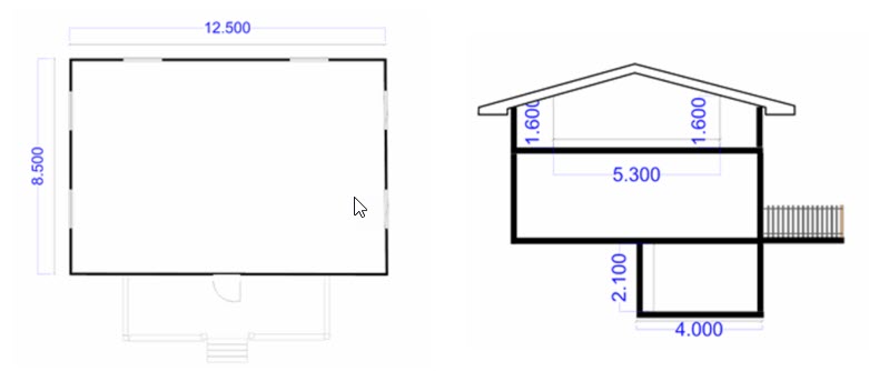
Ovdamearka oppalaš viidodaga rehkenastimis:
1. geardi: 12,50 m x 8,50 m = 106,25 m²
2. geardi: 12,50 m x 5,30 m = 66,25 m²
Geallir: 12,50 m x 4,00 m = 50,00 m²
Oktiibuot: 222,50 m² ≈ 222 m²

Deavdde dan lassin rivttes huksentiippa eará dieđuid:
Smávvadállu (bearašdállu, bárradállu, ráidodállu)
Guoddi ráhkadus
Almmut, leago vistti guoddi ráhkadus muorra vai geađgi dahje metálla. Guoddi ráhkadus váikkuha vistti ahkevuoládusprosentii ovttas huksentiippain.
Liggen
Vállje molssaeavttu Guovddášliggen, juos visttis lea čázi jorramii vuođđuduvvi liggenvuogádat. Das ii leat mearkkašupmi, leago lieggasa gáldun ovdamearkka dihte olju, mearra, hilla, gáiddusliekkas, eanaliekkas, várrejeaddji šleađgaliggen vai áimmu jorramii vuođđuduvvi liggen.
Vállje molssaeavttu Eará, juos visti liggejuvvo njuolgga šleađgafierpmái laktojuvvon liggenbáhtteriin dahje eará vástideaddji liggenrusttegiin.
Asttuáigge visti
Asttuáigge visttiin oaivvilduvvo visti, mii lea huksejuvvon váldoáššis asttuáigge atnui, ovdamearkka dihte geassestohpun. Visti galgá leat dábálaš asttuáigge visti. Juos vistti sturrodat, geavahanvuohki, huksendássi dahje rusttetdássi leat čielgasit earálágan go dábálaš asttuáigge visttis, visti lea giddodatvearuhusa dáfus smávvadállu. Visti lea smávvadállu ovdamearkka dihte dalle, juos dan sturrodat lea unnimustá 80 m2, rusttegat leat smávvadálu dásis ja viessu heive birrajagáš atnui. Almmut dákkár vistti dieđuid giddodatvearroalmmuhusa oasis Smávvadállu. Deavdde dieđuid oassái Smávvadállu maiddái dalle, juos bearašdállu lea asttuáigge anus.
Olles viidodat olgguldasmihtuid mielde
Loga deavdinrávvaga oasi 5.7 álggus, mo olles viidodat rehkenasto. Rehkenastte fárrui buot gerddiid, gealláriid ja lieggaskoađastuvvon loktalanjaid.
Vistti siskkobeale bálgoŋŋalágan sajiin rehkenasto vistti olles viidodahkii dat oassi, man friija allodat lea badjel 160 cm. Asttuáigge vistti olgofeaskkir ii rehkenasto olles viidodahkii. Merke olgofeaskára viidodaga sierra čuoggái Olgofeaskára viidodat.
Guoddi ráhkadus
Almmut, leago vistti guoddi ráhkadus muorra vai geađgi dahje metálla. Guoddi ráhkadus váikkuha vistti ahkevuoládusprosentii ovttas huksentiippain.
Olgofeaskára viidodat
Almmut dás olgofeaskára viidodaga njealjehasmehterin. Olgofeaskáriin oaivvilduvvo vistái bissovaččat laktojuvvon sadji, mas lea goavdi ja man bokte johttojuvvo visttis olggos. Olgofeaskkir galgá leat nu stuoris, ahte das sáhttá orodit. Olgofeaskára buot siidduin ii leat seaidni. Olgofeaskára viidodat ii rehkenasto fárrui vistti olles viidodahkii.
Almmut dan lassin, leatgo visttis čuovvovaš rusttegat dahje iešvuođat:
- Šleađga
Visttis lea šleađga, juos visti lea laktojuvvon šleađgafierbmái dahje vistái sirdo 230 V šleađgarávdnji. Šleađgaenergiija buvttadanvuogis ii leat mearkkášupmi. - Čáhcejođas
Čáhcejođasin dollojuvvo dakkár vistái bissovaččat biddjon čáhcejođasvuogádat, masa čáhci boahtá guovllu čáhcejođasfierpmis dahje gáivvos (riekkes- dahje bovragáivvos) jogo deattuin dahje pumppain. - Duolvačáhcebohcci
Duolvačáhcebohccin dollojuvvo dakkár vistái bissovaččat biddjon duolvačáhcebohccevuogádat, mii nohká guovllu duolvačáhcefierpmádahkii, vuojulduhttin- dahje gittagáivvoi dahje smávvabuhtistanlágádussii. Nu gohčoduvvon ránes čáziid gieđahallamii oaivvilduvvon eanaroggi ii leat duolvačáhcebohcci. - Hivsset
Hivsset galgá leat čáziin doidinláhkai ja duolvačáhcebohccái laktojuvvon. Kemiijalaš hivsset dahje elektrihkalaš goikehivsset ii leat hivsset. - Visti lea dálveásahahtti
Visti lea dálveásahahtti, juos das lea liggen ja doarvái skoađas dahje seaidneassodat, vai vistti temperatuvra bissu liggedettiin unnimustá +15 celsiusgráđas. Liggemii sáhttá geavahit ovdamearkka dihte várrejeaddji uvnna, kamiinna dahje šleađgabáhtteriid. Dálveásahahtti ii oaivvil seamma go fásta ássamii heivvolaš. Visti ii nappo dárbbaš heivet fásta ássanatnui. - Visttis lea sávdni
Sávdni galgá leat vistti guoddi ráhkadusaid siskkobealde. Juos sávdni lea sierra visti, merke ruossa Ii-molssaektui. Deavdde dalle sávnni dieđuid sierra čuoggái Dállodoallovisti ja vállje dan čuoggá molssaevttuin Sávdni.
Dállodoallovisti, biilastálle dahje sávdni
Merke dán čuoggái, leago visti dállodoallovisti, biilastálle vai sávdni.
Juos visti lea biilagoavdi dahje eará goavdi, ale deavdde dan dieđuid dása muhto deavdde huksentiipa "Eará visti dahje huksehus".
Olles viidodat olgguldasmihtuid mielde
Loga deavdinrávvaga oasi 5.7. álggus, mo olles viidodat rehkenasto.
Guoddi ráhkadus
Almmut, leago vistti guoddi ráhkadus muorra vai geađgi dahje metálla. Guoddi ráhkadus váikkuha vistti ahkevuoládusprosentii ovttas huksentiippain.
Huksentiipa
Vállje molssaeavttu Lieggaskoađastuvvon, juos visti lea lieggaskoađastuvvon ja muđuige huksenvuogi hárrái oaivvilduvvon guhkesáigge atnui. Ovdamearkka dihte sávdni gehččo leat guhkesáigge atnui oaivvilduvvon ja huksengoluid hárrái das lea eanet árvu go geahpparáhkaduvvon visttis.
Vállje molssaeavttu Geahpparáhkaduvvon, juos visti lea geahpparáhkaduvvon ja lieggaskoađasmeahttun.
Industriija- ja rádjovisti
Olles viidodat olgguldasmihtuid mielde
Loga deavdinrávvaga oasi 5.7. álggus, mo olles viidodat rehkenasto.
Sadjáivuohta
Vistti dahje dan oasi sadjáivuohta guđahasmehterin. Vistti sadjáivuhtii čáhkaduvvojit sihke liegga ja galbma sajit olgguldasmihtuid mielde rehkenastimiin.
Guoddi ráhkadus
Almmut, leago vistti guoddi ráhkadus muorra vai geađgi dahje metálla. Guoddi ráhkadus váikkuha vistti ahkevuoládusprosentii ovttas huksentiippain.
Geardelohku (geallir mielde)
Almmut, galle gearddi visttis leat. Rehkenastte geardelohkui maidddái gealláriid. Rehkenastte loktagearddi fárrui dušše, juos dat lea lieggaskoađastuvvon.
Liggen ja čáhcejođas
Vállje molssaeavttu I, II, III, dahje IV dan mielde, mii lagamustá vástida vistti iešvuođaid. Doaimmahat- ja sosiáladoaibmasajiid viidodagat rehkenastojit sismihtuid mielde.
Biggoheapmi ja čuovggat
Vállje molssaeavttu I, II dahje III dan mielde, mii lagamustá vástida vistti iešvuođaid. Doaimmahat- ja sosiáladoaibmasajiid viidodagat rehkenastojit sismihtuid mielde.
Ássangeardedállu
Olles viidodat olgguldasmihtuid mielde
Loga deavdinrávvaga oasi 5.7. álggus, mo olles viidodat rehkenasto.
Guoddi ráhkadus
Almmut, leago vistti guoddi ráhkadus muorra vai geađgi dahje metálla. Guoddi ráhkadus váikkuha vistti ahkevuoládusprosentii ovttas huksentiippain.
Geardelohku (geallir mielde)
Rehkenastte geardelohkui maiddái gealláriid. Rehkenastte loktagearddi fárrui dušše, juos dat lea lieggaskoađastuvvon.
Lanjadagaid lohkomearri
Ammut, galle lanjadaga visttis leat.
Visttis lea hissa
Almmut, leago visttis hissa vai ii.
Gávpevisti
Olles viidodat olgguldasmihtuid mielde
Loga deavdinrávvaga oasi 5.7. álggus, mo olles viidodat rehkenasto.
Sadjáivuohta
Vistti dahje dan oasi sadjáivuohta guđahasmehterin. Rehkenastte sadjáivuođa olgguldasmihtuid mielde ja rehkenastte dasa sihke liegga ja galbma sajiid.
Guoddi ráhkadus
Almmut, leago vistti guoddi ráhkadus muorra vai geađgi dahje metálla. Guoddi ráhkadus váikkuha vistti ahkevuoládusprosentii ovttas huksentiippain.
Geardelohku (geallir mielde)
Almmut, galle gearddi visttis leat. Rehkenastte geardelohkui maiddái kealláriid. Rehkenastte loktagearddi fárrui dušše, juos dat lea lieggaskoađastuvvon.
Geallára viidodat
Rehkenastte geallára viidodaga njealjehasmehterin. Das ii leat mearkkašupmi, makkár anus geallir lea.
Rájuid viidodat, mat leat eará sajis go gealláris
Juos visttis lea rádju eará sajis go gealláris, rehkenastte oktii dákkár eará rájuid viidodagaid sismihtuid mielde.
Doaimmahatvisti dahje hotealla
Almmut, leago vistti tiippa doaimmahatvisti vai hotealla.
Olles viidodat olgguldasmihtuid mielde
Loga deavdinravvaga oasi 5.7. álggus, mo olles viidodat rehkenasto.
Sadjáivuohta
Vistti dahje dan oasi sadjáivuohta guđahasmehterin. Rehkenastte sadjáivuođa olgguldasmihtuid mielde ja rehkenastte dasa sihke liegga ja galbma sajiid.
Guoddi ráhkadus
Almmut, leago vistti guoddi ráhkadus muorra vai geađgi dahje metálla. Guoddi ráhkadus váikkuha vistti ahkevuoládusprosentii ovttas huksentiippain.
Ráju viidodat
Rájuid oktasaš viidodat njealjehasmehterin rehkenaston sismihtuid mielde. Doaimmahatgearddi unna rájut eai rehkenasto ráju viidodahkii.
Hissaoliid viidodat
Rehkenastte hissaoali viidodaga sismihtuid mielde. Gearddo hissaoali vuođu daid gerddiid lohkomeriin, maid čađa hissa johtá. Juos visttis leat máŋga hissa, rehkenastte viidodagaid oktii.
Parkerensajiid viidodat
Vistti parkerensajiid viidodat rehkenaston njealjehasmehterin sismihtuid mielde.
Vistti hápmi
Vállje molssaeavttu I, II dahje III dan mielde, mii lagamustá vástida vistti iešvuođaid.
Biggoheapmi
Vállje molssaeavttu I, II dahje III dan mielde, mii lagamustá vástida vistti iešvuođaid.
Eará visti dahje huksehus
Olles viidodat olgguldasmihtuid mielde
Loga deavdinrávvaga oasi 5.7. álggus, mo olles viidodat rehkenasto.
Sadjáivuohta
Vistti dahje dan oasi sadjáivuohta guđahasmehterin. Rehkenastte sadjáivuođa olgguldasmihtuid mielde ja rehkenastte dasa sihke liegga ja galbma sajiid.
Guoddi ráhkadus
Almmut, leago vistti guoddi ráhkadus muorra vai geađgi dahje metálla. Guoddi ráhkadus váikkuha vistti ahkevuoládusprosentii ovttas huksentiippain.
Huksengolut
Almmut dás vistti dahje huksehusa huksengoluid.
Juos visti dahje huksehus leamašan gaskandaga 31.12. vearrojoagi ovddit jagi, almmut ja meroštala huksengoluid gárvves huksehusa mielde. Almmut dalle maiddái gárvánandási proseantta oasis 5.4 (Vistti gaskandaga ja gárvvásmuvvan) čuoggás "Gaskandaga vistti gárvánandássi juovlamánu 31. beaivve ovddit jagi".
Dárkilut govvádus visttis dahje huksehusas
Čale dása dárkilut govvádusa das, makkár visttis dahje huksehusas lea gažaldat.
5.8 Vuođđodivvumat ja eará mearkkašahtti divvundoaimmat
Almmut, mat rievdadusat vistái leat dahkkon ovdal dán jagi ođđajagimánu 1. beaivve. Juos vistái lea vuođđodivvuma oktavuođas lasihuvvon oppalohkái ođđa rusttegat dahje iešvuođat, almmut dáid daidda várrejuvvon čuoggáin. Almmut nappo ovdamearkka dihte asttuáigge vistái lasihuvvon duolvačáhcebohcci geassima oasis 5.7 čuoggás Asttuáigge visti. Dákkár ođđa rusttega lasiheami ii dárbbaš sierra almmuhit oasis 5.8.
Vuođđodivvunjahki
Almmut dás vuođđodivvuma jagi.
Vuođđodivvun- ja divvungolut
Almmut dás vearrojagi ovddit jagi (nuppiin sániin diimmá) ollašuhtton vuođđodivvun- ja divvungoluid meari.
Ođđasis huksemii veardásaš rievdadus
Merke ruossa čuoggái "Ođđasis huksemii veardásaš rievdadus", juos visti lea vuođđodivvojuvvon nu ahte dat vástida ođđa vistti. Almmut maiddái vistti olles viidodaga vuođđodivvuma maŋŋá skovi oasis 5.7 (Huksentiipa ja vistti iešvuođat). Juos visti lea vuođđodivvuma oktavuođas viiddiduvvon, almmut viiddideami dieđuid sierra oasis 5.5.
6 Lassedieđut
Sáhtát čállit dása lassedieđuid. Sáhtat čállit dása ovdamearkka dihte giddodaga dahje vistti oamasteapmai dahje hálddašeapmai laktáseaddji lassedieđuid, čilgehusa eanageavaheami rievdadusas, ákkastallama vistti eret sihkkumii dahje dárkilut govvádusa visttis.
Beaivát ja vuolláičale skovi. Almmut maiddái telefonnummira, gos du fáhte beaivit.
7 Giddoatvearu njulgengáibádus giddodatvearuhusa nohkama maŋŋá
Giddodatvearuhusa nohkanbeaivvi maŋŋá sáhtát ohcat rievdadusa iežat giddodatvearuhussii vearuhusa njulgenlávdegottis. Giddodatvearuhusa nohkanbeaivvi oainnát giddodatvearuhusmearrádusastat. Sáhtát dahkat njulgengáibádusa OmaVero-bálvalusas. Juos dagat njulgengáibádusa báhpáriin, deavdde njulgengáibádusa ja bija mielddusin dán skovi. Almmut skovis vearrojahkin dan jagi, man vearuhussii gáibidat rievdadusa. Go skovi eará čuoggáin čujuhuvvo dihto beaivemearrái, dainna oaivvilduvvo beaivemearri, maid leat almmuhan vearrojagi ektui. Ovdamearkan oassi 5.4 (Vistti gaskandagavuohta ja gárvvásmuvvan): Juos leat almmuhan, ahte ozat rievdadusa vearrojagi 2019 vearuhussii, oaivvilda teaksta "juovlamánu 31. beaivve ovddit jagi " beaivvi 31.12.2018.