Kun kirjaudut OmaVeroon, saat käyttöösi Suomi.fi-viestit. Veroposti tulee sen jälkeen vain sähköisesti OmaVeroon. Lue lisää muutoksesta.
Verohallinto antoi 27.3.1980 ohjeen rakennuksen jälleenhankinta-arvoasetuksen soveltamisesta. Ohjetta on päivitetty vastaamaan voimassa olevaa lainsäädäntöä ja oikeuskäytäntöä.
Johtava veroasiantuntija Tero Määttä
Toimistopäällikkö Jyrki Tiihonen
1 Jälleenhankinta-arvo
Rakennuksen jälleenhankinta-arvolla tarkoitetaan arvioitavaa rakennusta vastaavan uudisrakennuksen todennäköisiä rakennuskustannuksia, jos rakennus pystytettäisiin arviointihetkellä samalle paikalle. Valtiovarainministeriön asetuksella säädetään tarkemmin jälleenhankinta-arvon laskemisesta.
Rakennusten arviointi on yleensä suoritettava noudattaen jälleenhankinta-arvoasetusta sellaisenaan. Vain niissä tapauksissa, kun joko verovelvollinen tai veroviranomainen voi osoittaa, että rakennus poikkeaa olennaisesti keskimääräisestä rakennustasosta, on asetuksessa olevista arvoista poikettava. Poikkeaminen voi asetuksen 1 §:n mukaan olla kuitenkin enintään ± 30 prosenttia. Todellisia rakennuskustannuksia voidaan käyttää vain, kun arvioidaan asetuksen 21 §:n 1 momentissa tarkoitettuja rakennuksia ja rakennelmia sekä verrattaessa rakennuksen laatutasoa keskimääräiseen rakennustasoon.
Jälleenhankinta-arvo asetuksessa mainittujen rakennusten lisäksi Verohallinnon vuosittain antamassa yhtenäistämisohjeessa on annettu ohjeet kasvihuoneiden, viljan säilytykseen käytettävien siilojen, ylipainehallien, kalliosuojien, ruokalarakennusten, pysäköintitalojen, uima- ja jäähallien sekä antennimastojen arvojen laskemiseksi.
Rakennuksen jälleenhankinta-arvosta tehdään varojen arvostamisesta verotuksessa annetun lain (1142/2005, jäljempänä arvostamislain) 30 §:ssä mainitut ikäalennukset, jolloin saadaan rakennuksen verotusarvo. Rakennuksen verotusarvo ei ole sama kuin sen todennäköinen luovutushinta. Rakennuksen myyntihinnalla tai todellisilla rakennuskustannuksilla ei siten yleensä ole merkitystä jälleenhankinta-arvoa määrättäessä. Jos kiinteistön kiinteistöveron alaisten osien verotusarvojen yhteismäärä on niiden käypää arvoa suurempi, kiinteistöveron alaisten osien arvoksi katsotaan kuitenkin enintään käypä arvo arvostamislain 32 §:n mukaan. Oikeuskäytännössä on katsottu, että kiinteistöverotuksessa ei ole estettä kiinteistön osien arvostamiselle erikseen (KHO:1996-B-555 www.finlex.fi).
Rakennusten jälleenhankinta-arvoasetuksen arvot perustuvat keskimääräisiin rakennuskustannuksiin, joista jälleenhankinta-arvon perusteena on käytetty 70 prosenttia. Tämä on otettava huomioon, kun joudutaan arvioimaan asetuksen 21 §:n 1 momentin tarkoittamien muiden rakennusten ja rakennelmien arvoa. Tällöin otetaan jälleenhankinta-arvon perusteeksi 70 % rakennuskustannuksista.
Asetuksessa mainittuja jälleenhankinta-arvon perusteena käytettäviä yksikköarvoja on yleensä tarkistettu vuosittain kesäkuun rakennuskustannusindeksin (1980=100) muutosta vastaavasti. Yksikköarvojen tarkistus on tehty täysin prosentein.
Valtiovarainministeriö antaa lisäksi vuosittain oman asetuksen vesivoimalaitoksen ja sen rakenteiden jälleenhankinta-arvon perusteista.
2 Jälleenhankinta-arvoasetuksen rakenne
Seuraavassa on selvitetty jälleenhankinta-arvoasetuksen eri kohtia rakennusten käyttötarkoitusryhmittäin asetuksen mukaisessa järjestyksessä. Rakennustyyppi määräytyy rakennuksen ominaisuustietojen perusteella, eikä siihen siten vaikuta yksinomaan se, missä tosiasiallisessa käytössä rakennus on.
3 Rakennuksen pinta-alan käsite asetuksessa
Jälleenhankinta-arvoasetuksessa rakennuksen pinta-alalla tarkoitetaan sitä alaa (kokonaisalaa), johon lasketaan ulkomitoin kaikkien kerrosten, kellareiden ja lämpöeristettyjen ullakkohuoneiden pinta-alat. Pinta-alaan ei lasketa parvekkeita, katoksia eikä tiloja, joissa vapaa korkeus on alle 160 cm. Pinta-alaan ei lasketa rakennuksen seinien sisäpuolella olevia vähäistä suurempia välipohjan aukkoja kuten niin sanottuja valokuiluja ja valopihoja. Pinta-alaan ei myöskään lasketa porttikäytäviä ja ulkoseinän paksuutta syvempiä ovisyvennyksiä eikä rakennuksen ulkoseinän ulkopuolella olevien pilarien, pilasterien, hormistojen, savupiipun tms. alaa. Normaalit kerrosten väliset kulkuaukot sen sijaan lasketaan pinta-alaan.
Jälleenhankinta-arvoasetuksessa määritelty rakennuksen pinta-ala poikkeaa Maankäyttö- ja rakennuslain (Maank. ja RL 115 §) mukaisesta rakennuksen kerrosalan määrittelystä niin, että kaikki ullakon lämpöeristetyt tilat ja kellaritilat kokonaisuudessaan lasketaan rakennuksen pinta-alaan. Jälleenhankinta-arvoasetuksen mukainen rakennuksen pinta-ala on Maankäyttö- ja rakennuslain mukaiseen kerrosalaan verrattuna yleensä vähän suurempi tai ainakin samaa suuruusluokkaa.
Kokonaisala ja kerrosala lasketaan samalla periaatteella: ala on tasojen alojen summa ulkoseinien ulkopintojen mukaan laskettuna. Kokonaisalaan ei lasketa:
- alle 160 cm korkeita tiloja
- parvekkeita
- katoksia.
Kerrosalaan ei lasketa ullakolla tai kellarikerroksessa sijaitsevia muita kuin pääasiallisen käyttötarkoituksen mukaisia tiloja. Varsinaisen kerroksen kaikki tilat lasketaan kerrosalaan käyttötarkoituksesta riippumatta. Rakennuksessa, jossa ei ole kellarikerrosta eikä ullakkoa, kerrosala ja kokonaisala ovat yhtä suuret.
Asetuksen 3 §:ssä tarkoitettavien toimisto- ja teollisuusrakennuksissa sijaitsevien toimisto-, sosiaali-, varasto- ja paikoitustilojen pinta-alat lasketaan samalla tavalla kuin huoneistoalaa laskettaessa menetellään. SFS standardin Rakennuksen pinta-alat (SFS 5139:2011) mukaan huoneistoala on ala, jota rajaavat toisaalta huoneistoa ympäröivien seinien, toisaalta huoneiston sisällä olevien kantavien seinien ja muiden rakennukselle välttämättömien rakennusosien huoneiston puoleiset pinnat. Eli huoneistoala lasketaan sisämitoin, eikä siihen lasketa kantavia seiniä ja hormeja.
4 Rakennusten arviointi rakennustyypeittäin
4.1 Pientalot (4 §)
Pientalolla tarkoitetaan erillistä omakotitaloa, paritaloa tai rivitaloa, jossa käynti asuinhuoneistoihin on yleensä järjestetty suoraan maan tasosta ilman erillistä porraskäytävää. Vapaa-ajan käytössä oleva omakotitalo arvioidaan pientalona.
4.1.1 Pientalon pinta-ala
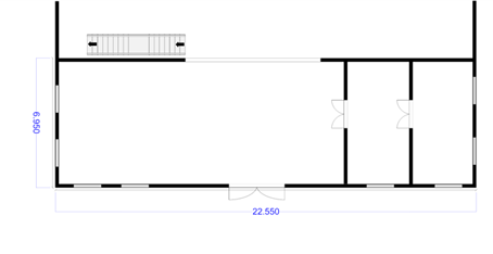
Rakennuksen pinta-alaan lasketaan ulkomitoin kaikkien kerrosten, kellareiden ja ullakoiden pinta-alat (katso kuva 1). Siihen ei lasketa parvekkeita ja katoksia eikä alle 160 cm korkeita tiloja. Ullakko ja kuisti luetaan mukaan vain, jos ne ovat lämpöeristettyjä. Rivitalon ja paritalon pinta-alalla tarkoitetaan koko rakennuksen pinta-alaa.
Jos pientalon ullakkokerros on tarkoitettu asuinkäyttöön rakennettavaksi, on se myös rakennusluvassa laskettu rakennuksen kokonaispinta-alaan mukaan. Yleensä ullakko rakennetaan rakennusvaiheessa siten, että seinissä ja ullakkotilan katossa on lämpöeristeet ja ainoastaan pintamateriaalit ja kalusteet sekä mahdollisesti väliseinät ja lattiapinnoitteet puuttuvat. Rakennuksen pinta-alaan lasketaan asetuksen mukaisesti lämpöeristettyjen ullakkotilojen pinta-ala. Siten lämpöeristetyn mutta vielä asuinkäyttöön rakentamattoman ullakkotilan pinta-ala lasketaan verotettavaan pinta-alaan siltä osin kuin sen vapaa korkeus ylittää 160 cm. Samoin menetellään keskeneräisen kellarikerroksen kohdalla.
Rakennuksen sisäpuolella olevat parvitilat lasketaan rakennuksen pinta-alaan siltä osin kuin niiden vapaa korkeus ylittää 160 cm.
Kun pinta-alan perusarvoa korjataan rakennuksen pinta-alan perusteella, lasketaan pinta-alaan mukaan myös viimeistelemätön kellari.
4.1.2 Kellaritilat (6 §)
Kellarin viimeistelynä pidetään kosteus- ja lämpöeristeiden sekä pintamateriaalin ja lämmityslaitteiden (putket, patterit, jne.) asentamista kellarin lattiaan ja seiniin. Jos kellaritilat on rakennettaessa tai jälkikäteen viimeistelty ja sinne on sijoitettu asuintiloihin verrattavia sauna-, puku- ja takkahuoneita, askarteluhuoneita, uima-allastiloja, lämpimiä varastoja tai lämmin autotalli, kellaria ei pidetä viimeistelemättömänä. Viimeistelemättömät kellarit ovat olleet yleisiä ennen vuotta 1960 rakennetuissa 1½-kerroksissa kellarillisissa rakennuksissa, mutta niissäkin ne usein on jälkikäteen viimeistelty vastaamaan nykyaikaista käyttöä. Jos kellaritilat kuitenkin ovat edelleen osittain viimeistelemättömiä (autotallit, varastot, kattilahuoneet) ja osittain viimeisteltyjä, voidaan vain viimeistelemättömän kellaritilan pinta-ala arvioida asetuksen 6 §:n mukaan. Uusissa pientaloissa kellaria pidetään viimeistelemättömänä vain erillisen selvityksen perusteella.
Pinta-alan perusteella tehtävä perusarvon alentaminen vaikuttaa koko rakennuksen arvoon. Esimerkiksi, jos rakennuksen pinta-ala on 100 m², josta 30 m² on viimeistelemätöntä ja pääasiassa varastokäytössä olevaa kellaria, lasketaan jälleenhankinta-arvo siten, että 70 m² lasketaan rakennuksen ominaisuuksien perusteella korjatulla perusarvolla ja 30 m²:n viimeistelemätön kellari asetuksen 6 §:n osoittamalla arvolla.
4.1.3 Pientalon varusteet
Jos pientalosta puuttuu asetuksessa lueteltuja varusteita, pinta-alan perusarvoa alennetaan asetuksessa tarkemmin kerrotulla tavalla. Uusissa pientaloissa katsotaan ilman erillistä selvitystä olevan vesijohto, viemäri ja sähkö.
Vesijohtona pidetään sellaista rakennukseen kiinteästi asennettua vesijohtojärjestelmää, johon vesi tulee alueellisesta vesijohtoverkostosta tai kaivosta (rengas- tai porakaivo) joko paineella tai pumpulla.
Viemärinä pidetään sellaista rakennukseen kiinteästi asennettua viemäröintijärjestelmää, joka päättyy alueelliseen viemäriverkostoon, saostus- tai umpikaivoon tai pienpuhdistamoon. Viemärinä ei pidetä niin sanottujen harmaiden vesien käsittelyyn tarkoitettua maakuoppaa.
Keskuslämmityksenä pidetään vesikiertoista lämmitysjärjestelmää, jossa lämmönlähteenä on öljy, puu tai hiili, kaukolämpö tai maalämpö. Keskuslämmityksenä pidetään myös ilmakeskuslämmitystä, jossa rakennusta lämmitetään kiertävällä ilmalla sekä varaavaa sähkölämmitystä. Suora sähkölämmitys, öljykamiinalämmitys ja uunilämmitys eivät ole keskuslämmityksiä. Suorassa sähkölämmityksessä rakennusta lämmitetään suoraan sähköverkkoon kytketyn lämpöpatterin, lattialämmityksen tms. avulla. Keskuslämmitys ei myöskään ole kyseessä, kun lämmitys on järjestetty ilmalämpöpumppujen tai varaavien tulisijojen avulla.
Pientalossa katsotaan olevan sähkövaruste, kun rakennus on liitetty sähköverkkoon tai siihen johdetaan 230V sähkövirta riippumatta sähköenergian tuotantotavasta.
4.1.4 Kantavien rakenteiden ulkopuoliset tilat
Jos asuinrakennuksen kantavien seinien ulkopuolella mutta rakennukseen kiinteästi liittyvänä on lämpöeristämätön autotalli tai sen kaltaista tilaa, pidetään tätä tilaa talousrakennuksena, joka arvostetaan rakennusosana.
4.2 Asuinkerrostalot (7 §)
Asuinkerrostalolla tarkoitetaan vähintään kaksikerroksista ja useita asuinhuoneita käsittävää, yleensä kivirakenteista asuinrakennusta, jossa on erillisiä huoneistoja päällekkäin.
Rakennuksen käyttötarkoituksen muutoksesta, katso jäljempänä kohta 5.
4.2.1 Asuinkerrostalon pinta-ala
Rakennuksen pinta-alaan lasketaan ulkomitoin kaikkien kerrosten, kellareiden ja ullakoiden pinta-alat (katso kuva 2). Siihen ei lasketa parvekkeita ja katoksia eikä alle 160 cm korkeita huonetiloja. Ullakko luetaan mukaan vain, jos se on lämpöeristetty.
4.2.2 Muut asuinkerrostalon arvoon vaikuttavat tiedot
Kerroslukuun lasketaan mukaan kellarikerrokset. Ullakkoa ei lasketa kerroslukuun, jos se on lämpöeristämätön. Väestörekisterikeskuksesta välitettävä kerroslukumäärä ei sisällä maanalaisia kellarikerroksia.
Huoneistojen lukumäärään lasketaan kaikki huoneistot riippumatta niiden käyttötarkoituksesta. Siten myös liike- ja toimistohuoneistot lasketaan asuinhuoneistojen lisäksi huoneistojen lukumäärään.
Jos asuinkerrostalossa on hissi, se korottaa rakennuksen perusarvoa. Mikäli rakennukseen rakennetaan hissi sen valmistumisen jälkeen, tulee hissi-varuste lisätä rakennuksen ominaisuuksiin. Sillä, onko hissi rakennuksen sisällä tai ulkoseinien ulkopuolella, ei ole merkitystä. Rakennuksen ulkopuolelle rakennettava hissi vaikuttaa kuitenkin myös rakennuksen pinta-alaan.
4.3. Vapaa-ajan asunnot (9 §)
Vapaa-ajan asunnolla tarkoitetaan pääasiassa vapaa-ajan viettoon tarkoitettua rakennusta, kuten kesämökkiä.
4.3.1 Pientaloon rinnastettava vapaa-ajan asunto (12 §)
Tavanomaisesta vapaa-ajan asunnosta kooltaan, käyttötavaltaan taikka rakennus- tai varustetasoltaan olennaisesti poikkeavaa asuinrakennusta pidetään pientalona.
Vähintään 80 m²:n suuruista ja varusteiltaan pientaloon rinnastettavaa ympärivuotiseen käyttöön soveltuvaa vapaa-ajan asuntoa voidaan pitää pientalona. Pelkästään yhden kriteerin perusteella, kuten esimerkiksi rakennuksen koon perusteella, ei rakennusta kuitenkaan voida pitää pientalona. Ratkaisu tehdään kokonaisarvioinnin perusteella.
Elinkeinotoiminnan käytössä olevat loma-asunnot, joita vuokrataan ympärivuotisesti, arvostetaan myös pientaloina.
4.3.2 Vapaa-ajan asunnon pinta-ala
Rakennuksen pinta-alaan lasketaan ulkomitoin kaikkien kerrosten, kellareiden ja ullakoiden pinta-ala (katso kuva 1). Siihen ei lasketa parvekkeita ja katoksia eikä alle 160 cm korkeita tiloja. Ullakko ja kuisti luetaan mukaan vain, jos ne ovat lämpöeristettyjä.
Rakennuksen sisäpuolella olevat parvitilat lasketaan rakennuksen pinta-alaan siltä osin kuin niiden vapaa korkeus ylittää 160 cm.
4.3.2.1 Kuisti
Kuistilla tarkoitetaan rakennukseen kiinteästi liitettyä katettua tilaa, jonka kautta on käynti asunnosta ulos ja joka on niin suuri, että siinä voi oleskella.
4.3.3 Talviasuttava vapaa-ajan asunto
Talviasuttavalla vapaa-ajan asunnolla tarkoitetaan rakennusta, jossa on lämmitys ja riittävä eristys tai seinävahvuus, jotta rakennuksen lämpötila pysyy vähintään + 15 asteessa. Lämmityksenä voi olla varaava takka, kamiina tai sähköpatterit.
Uudet vapaa-ajan asunnot katsotaan talviasuttaviksi rakennuksen muista varusteista riippumatta.
4.3.4 Vapaa-ajan asunnon varusteet
Vapaa-ajan asunnossa on sähkö-varuste, kun rakennus on liitetty sähköverkkoon tai siihen johdetaan 230V sähkövirta riippumatta sähköenergian tuotantotavasta.
Viemärinä pidetään sellaista rakennukseen kiinteästi asennettua viemäröintijärjestelmää, joka päättyy alueelliseen viemäriverkostoon, saostus- tai umpikaivoon tai pienpuhdistamoon. Viemärinä ei pidetä niin sanottujen harmaiden vesien käsittelyyn tarkoitettua maakuoppaa.
Vesijohtona pidetään sellaista rakennukseen kiinteästi asennettua vesijohtojärjestelmää, johon vesi tulee alueellisesta vesijohtoverkostosta tai kaivosta (rengas- tai porakaivo) joko paineella tai pumpulla.
Vapaa-ajan asunnon wc-varusteena pidetään vedellä huuhdeltavaa ja viemäriin liitettyä järjestelmää. Kemiallista käymälää tai sähköistä kuivakäymälää ei pidetä wc-varusteena.
Rakennuksessa oleva sauna katsotaan vapaa-ajan asunnon arvoa korottavaksi varusteeksi.
4.4 Talous- ja autotallirakennukset (13 §)
Talous- ja autotallirakennuksena pidetään erillistä saunarakennusta sekä erillistä talous- ja autotallirakennusta.
4.4.1 Talousrakennuksen pinta-ala
Talousrakennuksen pinta-alan ja muiden ominaisuustietojen mittaaminen tapahtuu, kuten edellä asuinrakennusten kohdalla on selvitetty.
4.4.2 Talousrakennuksen rakenne
Lämpöeristettyihin sekä muutenkin rakennustavaltaan pitkäaikaiseen käyttöön tarkoitettuihin rakennuksiin sovelletaan 13 §:n 2 momentin yksikköarvoa. Saunarakennukset arvostetaan samalla tavoin, vaikka niiden runkorakenteessa ei varsinaisia lämpöeristeitä olisikaan asennettuna. Sauna on rakennuksena pitkäaikaisempaan käyttöön tarkoitettu ja rakennuskustannuksiltaan arvokkaampi kuin kevytrakenteinen rakennus.
Kevytrakenteisen ja useimmiten lämpöeristämättömän talousrakennuksen ja autotallirakennuksen arvona käytetään jälleenhankinta-arvo asetuksessa erikseen mainittavaa yksikköarvoa.
Katoksiin (mm. autokatokset) ja vanhoihin maapohjaisiin liitereihin sovelletaan lähinnä soveltuvan rakennustyypin mukaista eli kevytrakenteisen talousrakennuksen arvioimisperusteita siten, että poikkeamaksi otetaan - 30 %.
4.4.3 Vapaa-ajan asunto vai sauna/talousrakennus
Rakennus arvostetaan pääsääntöisesti sen mukaan, mihin tarkoitukseen rakennuslupa on myönnetty. Esimerkiksi talousrakennuksen, jossa oli keittotilaa, katsottiin vaativan rakennusluvan vapaa-ajan asunnolle (KHO:2004:3).
Myös se, onko sauna- tai talousrakennus ainoa kiinteistöllä sijaitseva asumiseen käytettävissä oleva rakennus, tulee ottaa huomioon rakennusta arvostettaessa (KHO:1999:83, KHO 20.5.1997 taltio 1234, KHO:1985-B-II-580).
4.5 Toimistorakennukset (14 §)
Toimistorakennuksilla tarkoitetaan rakennusta, jonka tilat ovat pääasiallisesti rakennettu toimistotiloiksi. Esimerkiksi Tilastokeskuksen rakennusluokituksen mukaan toimistorakennuksia ovat yksityiset ja julkiset toimisto- ja hallintorakennukset, pankit ja vakuutuslaitokset. Rakennuksen katsotaan olevan pääasiallisesti toimistokäytössä, jos yli 50 % sen pinta-alasta on toimistopaikkoja varten. Toimistorakennuksena voidaan pitää myös hotelli- ja motellirakennusta. Kuitenkin ennen vuotta 1960 rakennettujen puisten hotellirakennusten osalta käytetään vastaavaa asuinrakennuksen arviointiperustetta.
Rakennuksen käyttötarkoituksen muutoksesta, katso jäljempänä kohta 5.
4.5.1 Toimistorakennuksen pinta-ala
Rakennuksen pinta-alaan lasketaan ulkomitoin kaikkien kerrosten, kellareiden ja ullakoiden pinta-ala (katso kuva 3). Pinta-alaan lasketaan myös mahdolliset rakennuksen katolla sijaitsevat hissi- ja LVI- konehuoneet. Pinta-alaan ei lasketa parvekkeita ja katoksia eikä alle 160 cm korkeita tiloja.
4.5.2 Muut toimistorakennuksen arvoon vaikuttavat tiedot
Rakennuksen tilavuus tarvitaan toimistorakennuksen keskimääräisen kerroskorkeuden laskemiseksi. Rakennuksen tilavuuteen sisällytetään sekä lämpimät että kylmät tilat ulkomittojen mukaan laskettuna (katso kuva 3).
Varaston pinta-ala lasketaan sisämitoin (katso kuva 3). Toimistorakennuksen varastotiloiksi lasketaan vain palo-osastoidut varastotilat. Toimistokerroksissa olevia vähäisiä, yleensä palo-osastoimattomia varastotiloja, ei lasketa varaston pinta-alaan.
Toimistorakennuksessa sijaitsevat väestönsuojatilat (vs-tilat) ovat rakenteeltaan palo-osastoituja ja siten myös ne lasketaan rakennuksen varastotiloiksi. Usein vs-tiloja käytetään myös varastotiloina.
Teknisiä tiloja ei katsota toimistorakennuksen varastotiloiksi. Tällaiset tilat ovat välttämättömät rakennuksen toiminnalle ja ne on huomioitu rakennuksen perusarvossa.
Rakennuksessa olevien paikoitustilojen pinta-ala lasketaan sisämitoin. Toimistorakennuksen paikoitustilaksi katsotaan pystysuunnassa rakennuksen ylä- tai alapuolella sijaitsevat paikoitustilat. Rakennuksen pystylinjojen ulkopuolella sijaitsevat paikoitustilat arvostetaan pysäköintitalona yhtenäistämisohjeen mukaisesti. Pihalla tai pihakannella sijaitsevia autopaikkoja ei lasketa toimistorakennuksen eikä pysäköintitalon autopaikkojen lukumäärään.
Jos rakennuksessa on hissi (hissejä), lasketaan hissikuilujen pinta-ala (katso kuva 3) kertomalla hissikuilujen pohjien pinta-alan niiden kerrosten lukumäärillä, joihin hisseillä pääsee.
Rakennuksen muodoksi valitaan sopivin jälleenhankinta-arvoasetuksessa toimistorakennusten kohdalla luetelluista vaihtoehdoista.
Jälleenhankinta-arvoasetuksessa luetelluista ilmastointivaihtoehdoista valitaan se vaihtoehto, joka parhaiten vastaa rakennuksen ominaisuuksia. Koska luokitusmääritteet ovat ohjeellisia, valinta tehdään kustannusperusteisesti. Esimerkiksi sellaisen toimistorakennuksen, jonka ilmastointi on jäähdytettävissä mutta ei huoneistokohtaisesti säädettävissä, ilmastointi-varustukseksi valitaan vaihtoehto, jossa ilmastointi on jäähdytettävissä ja huoneistokohtaisesti säädettävissä. Jäähdytyskoneiston kustannus on suurempi kuin huonekohtaisen säädön lisäkustannus.
Uusissa toimistorakennuksissa katsotaan aina olevan ilman koneellinen sisään ja ulospuhallus sekä ilmastointi jäähdytettävissä ja huoneistokohtaisesti säädettävissä.
4.6 Myymälärakennukset (16 §)
Myymälärakennuksella tarkoitetaan pääasiassa myymälätiloja sisältävää rakennusta. Varastotilojen osuus rakennuksen pinta-alasta voi kuitenkin olla huomattava. Myymälöitä koskevaa jälleenhankinta-arvoasetuksen kohtaa voidaan käyttää myös ravintola- ja baari-/kahvilarakennusten arvioimiseen.
Tilastokeskuksen rakennusluokituksessa myymälärakennukset on jaettu kolmeen luokkaan; 111 myymälähallit, 112 liike- ja tavaratalot ja kauppakeskukset, 119 muut myymälärakennukset. Myymälähallit (111) ovat tyypillisesti yksikerroksisia, hallimaista tilaa sisältäviä myymälärakennuksia. Rakennustasoltaan ne vastaavat asetuksessa tarkoitettua myymälärakennusta.
Tilastokeskuksen luokituksen 112 mukaisille uusille liike- ja tavarataloille sekä kauppakeskuksille poikkeamaksi katsotaan lähtökohtaisesti +20 %. Perusteena se, että nämä rakennukset yleensä sisältävät erikoismateriaaleja ja monimuotoisia tiloja.
Jos myymälätila on rakennuksessa, jota käytetään pääasiassa asuinrakennuksena, rakennus arvioidaan asuinrakennuksena.
4.6.1 Myymälärakennuksen tilavuus
Myymälärakennuksen tilavuuteen sisällytetään sekä lämpimät että kylmät tilat ulkomittojen mukaan laskettuna (katso kuva 4).
4.6.2 Myymälärakennuksen pinta-ala
Rakennuksen pinta-alaan lasketaan ulkomitoin kaikkien kerrosten, kellareiden ja ullakoiden pinta-ala (katso kuva 4). Pinta-alaan lasketaan myös mahdolliset rakennuksen katolla sijaitsevat hissi- ja LVI- konehuoneet. Pinta-alaan ei lasketa parvekkeita ja katoksia eikä alle 160 cm korkeita tiloja. Ullakko luetaan mukaan vain, jos se on lämpöeristetty.
4.6.3 Muut myymälärakennuksen arvoon vaikuttavat tekijät
Kerroslukuun lasketaan myös kellarit. Ullakko luetaan kerroslukuun vain, jos se on lämpöeristetty.
Kellarin pinta-ala lasketaan ulkomitoin riippumatta sen käyttötarkoituksesta.
Muualla kuin kellarissa olevien varastojen pinta-ala lasketaan sisämitoin (katso kuva 5).
4.7 Teollisuusrakennukset (18 §)
Teollisuusrakennuksella tarkoitetaan teollisuuden tuotanto- ja varastorakennusta sekä siihen verrattavaa rakennusta kuten korjaamoa, huoltoasemaa, maalaamoa, työpajaa, pienteollisuusrakennusta, leipomoa ja myllyä.
Huoltoasemalla tarkoitetaan polttoaineen jakelumyymälää, jossa on hallimaista ajoneuvojen pesu- ja/tai huoltotilaa. Pääasiassa myymälä- ja/tai ravintola/kahvilatiloja sisältävät rakennukset arvostetaan myymälärakennuksina.
Tavanomaisten teollisuuden tuotanto- ja varastorakennusten lisäksi asetuksen teollisuusrakennuksia koskevaa kohtaa voidaan käyttää myös suurten varastojen ja hallimaisten urheilurakennusten arviointiin.
4.7.1 Teollisuusrakennuksen tilavuus
Teollisuusrakennuksen tilavuuteen lasketaan sekä lämpimät että kylmät tilat ulkomittojen mukaan laskettuna (katso kuva 5).
4.7.2 Rakennuksen pinta-ala
Rakennuksen pinta-alaan lasketaan ulkomitoin kaikkien kerrosten, kellareiden ja ullakoiden pinta-ala (katso kuva 5). Pinta-alaan lasketaan myös mahdolliset rakennuksen katolla sijaitsevat hissi- ja LVI- konehuoneet. Pinta-alaan ei lasketa parvekkeita ja katoksia eikä alle 160 cm korkeita tiloja. Ullakko luetaan mukaan vain, jos se on lämpöeristetty.
4.7.3 Muut teollisuusrakennuksen arvoon vaikuttavat tekijät
Teollisuusrakennuksen kerroslukuun luetaan myös kellari. Kerroslukua tarvitaan otettaessa huomioon kerrosten lukumäärän vaikutus kuutiometrin perusarvoon. Jos rakennus on pääasiassa enemmän kuin 2-kerroksinen, korjataan kuutiometrin perusarvoa asetuksessa esitetyllä tavalla.
Lämmitys- ja vesijohto (LV-varusteet) yhdistelmävaihtoehdoista valitaan parhaiten sopiva.
Ilmastointi ja valaistus (IS-varusteet) yhdistelmävaihtoehdoista valitaan parhaiten sopiva.
Sosiaali-, toimisto- ja märkien tilojen pinta-alat lasketaan LV ja IS -varusteiden tasoa valittaessa sisämitoin ja tilojen prosenttiosuus lasketaan rakennuksen kokonaispinta-alasta.
4.8 Muut rakennukset ja rakennelmat (21 §)
4.8.1 Asetuksessa mainitsemattomat rakennukset ja rakennelmat
Jos rakennuksen tai rakennelman arvioimiseksi ei voida soveltaa mitään edellä selvitetyistä asetuksen kohdista, on arviointi perustettava rakennuksen tai rakennelman omistajan antamaan selvitykseen sekä rakennus- tai hankintakustannuksiin.
Rakennelmana voidaan pitää esimerkiksi siltaa, laituria, katsomoa, polttoainejakelukatosta tai tuulivoimalan tornia. Laiturilla ei tarkoiteta tavanomaista vapaa-ajan asunnon uima- tai venelaituria. Rakennelma voidaan määritellä kielteisesti kiinteäksi laitteeksi, joka ei ole rakennus, kone eikä irrallinen laite.
4.8.2 Eräät julkiset ja muut yleisessä käytössä olevat rakennukset
Asetuksen 21 §:n 2 momentissa on lisäksi lueteltu eräiden julkisten ja muiden yleisessä käytössä olevien rakennusten jälleenhankinta-arvon laskentaperusteita. Rakennustyypin valinnassa on mahdollisuuksien mukaan huomioitava rakennuksen käyttö ja rakenne.
Monitoimi- ja urheilutalojen kohdalla tulee huomioida, että hallimaiset urheilurakennukset voidaan arvostaa teollisuus-/varastorakennuksina.
Katsomorakennuksella tarkoitetaan rakennusta, jossa on myös peseytymis-, pukeutumis-, oleskelu- ja hallitiloja. Pelkkä katsomorakennelma ei ole asetuksessa tarkoitettu katsomorakennus.
Tietoliikennerakennuksia ovat esimerkiksi puhelin-, linkki- ja viestiasemarakennukset. Laitetilojen lisäksi rakennuksessa voi olla asuin-, toimisto- ja varastotilaa. Edellä mainittujen rakennusten laitesuojat eivät ole asetuksessa tarkoitettuja tietoliikennerakennuksia.
5 Muita asetuksen soveltamisessa huomioitavia seikkoja
Kokonaiskustannusten vaihtelu johtuu useista osatekijöistä, joiden vaikutus voi olla huomattava. Tärkeimpiä tekijöitä ovat valittujen rakennusmateriaalien, kalusteiden ja varusteiden sekä laitteiden laatutaso.
Jos rakennuksen käyttötarkoitus on sen valmistumisen jälkeen muutettu toiseksi (esimerkiksi toimistorakennus asuinkerrostaloksi) ja rakennukseen on tehty muutoksen edellyttämät työt, tai jos rakennus rakennustyypiltään vastaa muutettua käyttötarkoitusta, rakennus arvostetaan sen todellisen käyttötarkoituksen mukaan. Yleensä tällainen käyttötarkoituksen muutos edellyttää rakennuslupaa.
6 Kuvaliitteet
Ohjeita rakennusten jälleenhankinta-arvoasetuksen soveltamisesta (pdf)








